每个人都有一座音乐天堂梦
整装定制,随心所欲,
创造属于自己的娱乐私人天地
《佛山.南海东家小院》玛田7.2.4影院KTV案例


在快节奏的时代里,
总有一些坚持值得被铭记。
这座占地十亩的大型庭院里,
蕴含了老板的十年匠心精造,
也是他留给自己、留给他人的心中小院。

基本信息

· 项目名称:佛山南海.东家小院影音 KTV 室
· 项目地址:佛山市南海区东家小院
· 空间属性:影院KTV一体功能室(适配宴会接待、派对活动、休闲 K 歌等场景)
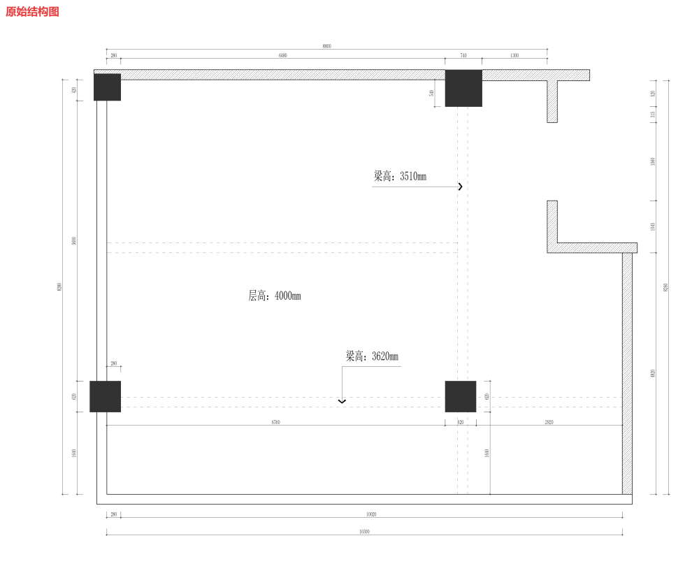
· 空间尺寸:长 10.3m × 宽 8.28m × 层高 4m(总面积约 85㎡)
· 核心需求:兼顾专业级观影与 KTV 演唱功能,适配多人聚会场景,操作便捷,风格融入会所中西融合格调
· 方案配置:英国玛田 7.2.4 杜比全景声影院KTV方案
· 本案位于佛山市.南海区仙湖旁一处幽静之地,业主是一名阅历深厚的实业家,在商界驰骋数十载的他,花了近十年的时间打造了这座私人会所综合体。整个院子既有中式传统的古韵,也有西式奢华的格调,处处展现着业主对于平静悠闲生活的品质追求。




随着小院接待需求的升级,业主希望打造一间 “能撑起场面” 的影音娱乐空间 —— 既要有影院级的观影体验,满足商务宴请后的放松需求;又要具备专业 K 歌功能,适配家庭派对、朋友聚会等场景;同时,考虑到小院的多元客群,操作需简单易懂,风格需与整体环境协调。基于此,我们量身定制了 “影院 + KTV + 智能联动” 的一体化方案,既保证专业性能,又兼顾实用性与美学融合。

设计团队
设计公司:广东赛宾科技有限公司
又称赛宾智能影音,国内杜比授权认证私人影厅,美国CEDIA 协会会员。
专业从事智能家居与家庭影院、声学设计与施工,私人影院电声设计等一站式服务。23年内成功实施了超过5000+落地案例,企业拥有扎实稳定的服务团队,严谨缜密的一站式服务流程,是佛山地区历史悠久、实力雄厚、服务完善的智能影音定制安装企业,一直致力为客户量身定制个性化高品质私人影院,为客户打造私人影音乐生活,缔造美于美国好莱坞标准的私人影院!让世界专业的家庭影音系统及全宅智能中控设备进入私家生活,尽显尊崇私人品味。

设计师:吴锦贤
热爱影音器材及电影,从事家庭影院定制安装 20多年,擅长家庭影院、全宅智能、空间声学设计,拥有扎实的影音产品专业知识,深受众多客户和同行设计师信任,打造众多家庭影院项目,案例荣获多个国内外私人影院设计大赛大奖。

工程师:伦家健
个人所专所长智能家居、弱电、强电及安防监控;擅长私人影院、私人高尔夫的整体解决方案,从业四年以来,以严谨负责的工作态度,打造了很多专业案例,为用户提供高效率的口碑影院效果,以及超高满意度,深得业主好评。

空间信息

空间尺寸:长10.3m*宽8.28m*高4m
设计内容:定制影音KTV一体室
项目地址:佛山南海.东家小院

构建过程
本案空间面积约为85㎡,属于大中型空间,将其设计整合成影院KTV于一体的多功能场所,需要考虑到多方面的设计细节。

众所周知,不同的环境对器材及声场的要求是不一样的,并且开放与封闭的空间所营造出的音频效果也不尽相同,因此当我们的客户想要缔造一间私人影音KTV室时,赛宾团队必须先确定其使用空间是在哪里,本案例是利用小院中一间独立空间打造而成。

确定好了空间位置,就是测量房间比例是否合理。不论是私人影院还是KTV室,在装修设计时,都要避免选用房间长宽高比例为整数倍的房间,否则强烈的驻波会增加后期的调试难度,再好的器材在这样的环境也不会有好的声音,本案空间比例经过实地测量,属于适宜空间比例。

确定了空间信息,那就需要从大的方面入手,确定落实设备的选择及安装方式,整个影K室不是简单的器材堆砌,也不是随随便便听个响声。赛宾团队需要做的是:让这个KTV既不能像商业KTV一样通俗无趣,又要超越商业KTV的效果。本案是整合了点歌系统、音响系统和视频系统,外加氛围灯光系统,无论是音色定位还是品牌选择,都是十分符合客户的类型。

器材方案确定好后,我们还需要站在客户的立场,去考虑KTV的实际效果,例如对于空间的整体布局,想要什么样的氛围,预计想达到什么样的成效等。本案是在客户给出的设计图纸和效果图上,在布线、设备安装以及灯光设计等方面给予指导意见,同时出具了详细的布线和安装定位图纸,让成品跃然于纸上,这样可以让客户提前了解自己的影K室做出来是什么样子。这一点非常重要,关乎未来客户对于成品验收的满意程度。

结合上述所有考虑因素,我们对这个 85㎡的空间进行了全面诊断,明确三大核心难点:
· 声学环境复杂:空间方正但层高仅 4m,容易产生驻波与声聚焦;且考虑到旁边还有会所宴会区与住宿区,需解决隔音降噪问题,避免娱乐噪音干扰其他区域。
· 功能兼容需求:需同时满足影院的 “沉浸式声场” 与 KTV 的 “人声还原”,两者对音频曲线、混响时间的要求差异较大,需实现精准平衡。
· 风格融合挑战:小院整体是中西融合格调,影音室需避免工业化设备堆砌,做到 “设备隐形、风格统一”,同时动感灯光系统需适配不同场景氛围。
针对以上难点,我们制定了 “声学优先、功能分区、美学融入” 的核心策略,分阶段推进构建:

01
声学系统:兼顾隔音与声场优化
在业主方施工单位前期进行施工时,赛宾团队对整个空间(墙身、表面、天花、地面等)的声学隔音、降噪、吸音处理上均给出了全面细致化的技术指导,并通过沙发家具等室内用品来协助减少驻波;再对空间的门根据门洞尺寸,定制专业的声学隔音门,有效阻隔45dB,让声场处理追求专业级别。


针对 7.2.4 全景声布局,对空间进行专业分析,确定音箱安装位置:前置主音箱嵌入透声幕后方,侧环绕与后环绕分别安装在墙面 ,天空声道均匀分布在天花板之上,低音炮置于前墙两侧,确保声场覆盖无死角。


02
设备布局:功能与美学的平衡
在影音设备安装方面,来自英国玛田的主音箱嵌入透声幕后方,隐藏式设计不破坏空间美感;环绕音箱与天空音箱采用定制支架安装,黑色箱体完美融入天花顶,兼顾声学穿透与视觉协调;两只低音炮置于前墙两侧,通过相位校准,增强低频冲击力。


03
智能联动:简化操作,适配多元场景
整间影K室使用的是美国Control 4智能控制系统,Control 4连续11年荣获CE Pro全屋智能品类榜首,让体验者拥有一个智能快捷的家庭影院。只需按下一个键,看电影,电视,K歌,调暗灯光、关闭窗帘,播放灯光调暗/关闭,暂停灯光亮起,一键继续观影无需起身或额外步骤,实现快捷的私享空间。

效果展示
广东赛宾科技有限公司
01
影院模式:沉浸式声画盛宴
当切换至 “影院模式”,灯光缓缓熄灭,230 寸 4K透声幕亮起,索尼投影机呈现的 4K HDR 画面细腻逼真 —— 暗部细节丰富,亮部层次分明,色彩饱满自然,仿佛置身院线 VIP 厅。英国玛田 7.2.4 杜比全景声系统发挥出强大实力:前置主音箱还原清晰的人声与背景音乐,环绕音箱让环境音效(如风声、脚步声)360° 包裹听众,天空声道传递高空场景的空间感(如飞机飞行、雨滴坠落),超低音炮带来震撼的低频冲击(如爆炸、地震场景)。

在观看《F1:极速狂飙》时,赛车手的视角通过巨幕呈现出的视觉张力,赛车狂飙时的呼啸声、轮胎摩擦声、激昂的解说声从四面八方传来,听众仿佛置身比赛现场,带来强烈的沉浸感,接待的客户接连反馈“这才叫真正的看电影”。

02
K 歌模式:专业级演唱体验
切换至 “K 歌模式”,暖光缓缓亮起,动感灯光随音乐节奏变换色彩与明暗,营造出轻松愉悦的氛围。英国玛田音响的人声还原能力尤为突出 —— 中频饱满通透,高频细腻不刺耳,低频富有弹性,即使是普通演唱者,也能唱出通透嘹亮的歌声。系统内置的 K 歌效果器支持混响、延迟调节,可根据演唱者的声线定制音效,搭配专业无线麦克风(防啸叫设计),彻底避免传统 KTV 的 “刺耳杂音” 问题。

在多次高端商务接待中,K 歌模式成为 “爆款功能”:从经典老歌到流行金曲,音响系统都能精准还原曲风特色;动感灯光与音乐节奏的联动,让现场氛围热烈而不杂乱。业主反馈:很多客人专门为了 K 歌来预定小院,甚至有客人说“比专业 KTV 还过瘾”。


方案配置
影院方案清单
英国玛田MARTIN AUDIO 主音箱*2只
英国玛田MARTIN AUDIO 中置音箱*1只
英国玛田MARTIN AUDIO 环绕音箱*4只
英国玛田MARTIN AUDIO全景声天花音箱*4只
英国玛田MARTIN AUDIO低音炮*1只
美国SVS 旗舰低音炮*1只
JBL AV功放*1台
DSPeaker 低音炮处理器*1台
Mark-lin 杜比全景声处理器*1台
Mark-lin 后级功放*6台
OPPO 4K蓝光播放机*1台
索尼 激光投影机*1台
230寸4K透声幕*1套
KTV方案清单
视易 8T点歌机*1套
视易 22寸触摸点歌屏*1台
Mark-lin 前级效果器*1台
Mark-lin 无线麦克风*1套
舒尔 无线麦克风*1套
ABL 电源时序器*1台
KTV动感智能灯光系统*1套
美国Control 4智能中控系统*1套
广东赛宾科技有限公司
设计心得▼
赛宾定制
在与业主沟通的过程中,我们深刻感受到他对"品质" 与"温度"的追求 —— 他希望影音室不仅是"高端设备的堆砌",更是"能让客人感受到用心"的空间。因此,我们在设计中没有追求 “参数”,而是以 "用户体验"为核心;声学处理兼顾专业与隐蔽,设备布局融入中西风格,智能操作简化易懂,每一个细节都体现赛宾团队的专业服务与心怀热忱。
这也让我们明白,私人定制影音项目的核心不是 “卖设备”,而是 “懂需求”—— 尤其是针对私人会所等商业空间,设计需兼顾专业性能、用户体验与商业价值,让设备真正服务于场景,让空间传递出独特的人文温度。

